
Серия 55/30
По DIN 3352, часть 4, по BS 5163 типа В.
Уплотнение штока сменное под давлением.
Расстояние между торцами : по EN 558-2: 1991/DIN 3202, часть 1, F5.
Размеры фланцев и отверстий: по ISO 7005-2 (EN 1092-2: 1997, DIN 2501)
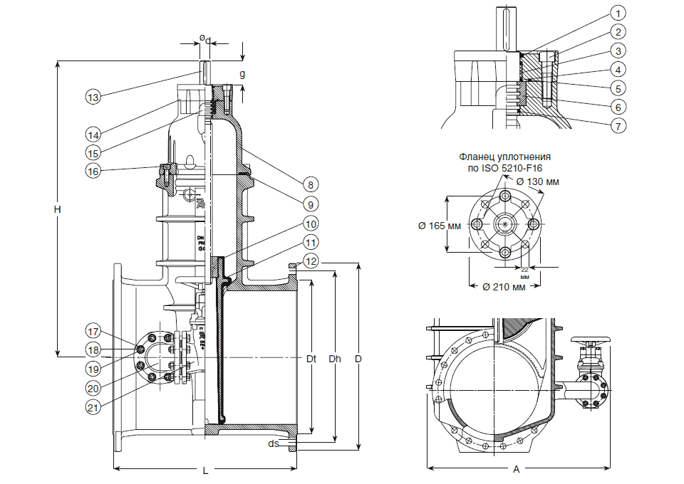
Фланец уплотнения по ISO 5210: 1991.
Установлен перепуск с задвижкой DN 80
Для воды, сточных вод и нейтральных жидкостей с температурой до +70°С
Гидравлическое испытание по DIN 3230 часть 4:
Проверка рабочего крутящего момента

| 1. Грязесъемное кольцо | 8. Крышка | 15. Подъемное ушко |
| 2. Болт фланца уплотнения | 9. Прокладка крышки корпуса | 16. Болт крышки |
| 3. Подшипник | 10. Гайка затвора | 17. Резьбовая шпилька |
| 4. Кольцо круглого сечения уплотнения штока | 11. Клиновой затвор | 18. Гайка |
| 5. Кольцо круглого сечения фланца уплотнения | 12. Корпус | 19. Шайба |
| 6. Упорное кольцо | 13. Шток | 20. Колено |
| 7. Кольцо кругл.сеч. штока/крышки | 14. Фланец уплотнения | 21. Перепускной клапан |
| Корпус, крышка и фланец уплотнения | ковкий чугун, GGG-50, по DIN 1693 (марка 500-7 по BS 2789) |
| Покрытие | Внутри и снаружи порошковое эпоксидное по DIN 30677, нанесённое электростатическим способом |
| Шток | Нержавеющая сталь, DIN x 20 Cr 13 |
| Уплотнение штока | Грязесъемное кольцо из NBR, 2 кольца круглого сечения из NBR |
| Клиновый затвор | Ковкий чугун GGG-50, с сердечником полностью вулканизированным резиной EPDM, где интегральная гайка клина – из устойчивой к обесцинкиванию латуни CZ 132 по BS 2874 |
| Упорное кольцо | Устойчивая к обесцинкиванию латунь CZ 132 по BS 2874 |
| Болты крышки | Нержавеющая сталь А2, пломбированы термоклеем |
| Прокладка крышки, кольцо круглого сечения уплотнения в штоке/крышке | Резина EPDM |
| Кольца круглого сечения фланца уплотнения | резина NBR |
| Подъёмные ушки, болты фланца уплотнения, резьбовые шпильки, гайки и шайбы | нержавеющая сталь |
| Перепускной клапан, коленья | чугун ковкий GGG-50 по DIN 1693 (марка 500-7 по 2789) |
Артикул |
DN | L, мм | H, мм | Dt, мм | D, мм | Dh, мм | Ds, мм | Кол-во отверстий | ød, мм | A, мм | g, мм | Вес, кг | ||||
| PN 10 | PN 16 | PN 10 | PN 16 | PN 10 | PN 16 | PN 10 | PN 16 | |||||||||
| 55-450-300X6001 | 450 | 650 | 1130 | 530 | 530 | 640 | 565 | 585 | 28 | 31 | 20 | 20 | 40 | 1056 | 80 | 633 |
| 55-500-300X6001 | 500 | 700 | 1130 | 585 | 585 | 715 | 620 | 650 | 28 | 34 | 20 | 20 | 40 | 1060 | 80 | 663 |
| 55-600-300X6001 | 600 | 800 | 1270 | 685 | 725 | 840 | 725 | 770 | 34 | 37 | 20 | 20 | 40 | 1172 | 80 | 828 |
X:
0 = PN 10
1 = PN 16