
Серия 06/30-26/00
По стандарту EN 1074-1 и 2 / EN 11712
Расстояние между торцами EN 558-F14 (DIN 3202, часть 1 F4)
Размеры фланцев и отверстий: по ISO 7005-2 (EN 1092-2: 1997, DIN 2501)
Для воды, сточных вод и нейтральных жидкостей с температурой до +70°С
Гидравлическое испытание по 1074-1 и 2 / EN 12266:
Проверка рабочего крутящего момента
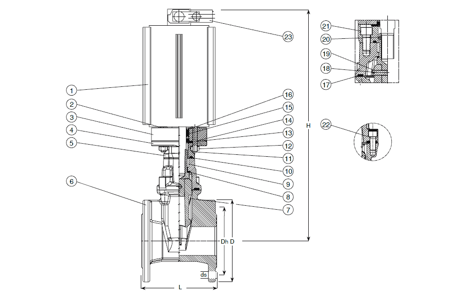
| 1. Пневмопривод | 7. Клин | 13. Прокладка | 19. Болт-фиксатор |
| 2. Шайба | 8. Кольцо | 14. Прокладка | 20. Центровой винт пиноли |
| 3. Сальниковая коробка | 9. Переходник шпинделя | 15. Грязесъемное кольцо | 21. Винт |
| 4. Фланец | 10. Кольцо кругл. сечения | 16. Уплотнение | 22. Винт |
| 5. Крышка | 11. Резьбовая шпилька | 17. Прокладка крышки | 23. Электромагнитный клапан |
| 6. Корпус | 12. Гайка | 18. Шплинт |
| Сальник, корпус и крышка | Ковкий чугун GJS-500-7, по EN 1563 (GGG-50 по DIN 1693) |
| Покрытие | Порошковое эпоксидное по DIN 30677-2 и GSK, нанесённое электростатическим способом внутри и снаружи |
| Пневмопривод | DN 65-200: алюминий DN 250-300: нерж. сталь |
| Шток, переходник шпинделя | Нержавеющая сталь |
| Уплотнение шпинделя | Грязесъемное кольцо из NBR, внутри 2 кольца круглого сечения из NBR |
| Клин | Ковкий чугун, с сердечником полностью вулканизированным резиной EPDM, где интегральная гайка клина – из устойчивой к обесцинкиванию латуни CZ 132 по BS 2878 (CW602N по EN12165) |
| Кольцо | ПЭ высокой плотности |
| Кольцо круглого сечения, прокладка | NBR, DIN 3535-3 |
| Прокладка и прокладка крышки | NBR, EN 681-1 |
| Шайба, резьбовая шпилька и гайка, шплинт, центровой винт пиноли, винт | нержавеющая сталь А4, ISO 3506 |
| Сальниковая коробка, переходник штока, болт-фиксатор | нержавеющая сталь |
Артикул |
DN | L, мм | D, мм | Dh, мм | ds, мм | Кол-во болтов | H1, мм | H2, мм | Расход воздуха (6 бар) в литрах/ход задвижки |
Вес, кг | |
| С электромагнит. клапаном | Без электромагнит. клапана | ||||||||||
| 715-065-3003009 | 715-065-3003003 | 65 | 170 | 185 | 145 | 19 | 4 | 548 | 585 | 5,6 | 18 |
| 715-080-3003009 | 715-080-3003003 | 80 | 180 | 200 | 160 | 19 | 8 | 523 | 560 | 6,8 | 22 |
| 715-100-3003009 | 715-100-3003003 | 100 | 190 | 220 | 180 | 19 | 8 | 538 | 575 | 8,6 | 27 |
| 715-150-3003009 | 715-150-3003003 | 150 | 210 | 285 | 240 | 23 | 8 | 722 | 759 | 21,0 | 52 |
| 715-200-3003009 | 715-200-3003003 | 200 | 230 | 340 | 295 | 23 | 8 | 911 | 948 | 68,8 | 75 |
| 715-250-3003009 | 715-250-3003003 | 250 | 250 | 400 | 350 | 23 | 12 | 1051 | 1088 | 140,0 | 112 |
| 715-300-3003009 | 715-300-3003003 | 300 | 270 | 455 | 400 | 23 | 12 | 1177 | 1214 | 168,0 | 180 |
* вкл. катушки, светящиеся уплотнения (для 24 V и 230 V) и бесконтактные переключатели
** но с бесконтактными переключателями и защитными рейками