
Серия 702/30
С рычагом
Размеры фланцев и отверстий: по ISO 7005-2 (EN 1092-2: 1997, DIN 2501)
Двунаправленная полнопроходная задвижка. Защищенные уплотнения и высококачественные материалы обеспечивают высокую производительность и длительный срок службы. Клапаны могут быть повторно затянуты во время службы.
Для воды и сточных вод с температурой до +80°С.
Для установки в колодцах и помещениях
Испытательное давление смотрите в таблице ниже.
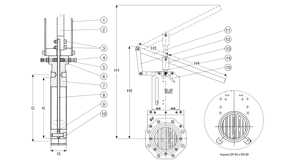
* DN 50-300 модели с замкнутой рамой; > DN 300 модели с незамкнутой рамой

| 1. Стойка | 9. Прокладка корпуса |
| 2. Шток | 10. Болт корпуса |
| 3. Болт и гайка | 11. Рычаг |
| 4. Болт сальника уплотнения | 12. Направляющая рычага |
| 5. Толкатель | 13. Коромысло |
| 6. Сальник уплотнения | 14. Кронштейн рычага |
| 7. Корпус | 15. Блокирующая рукоятка |
| 8. Шибер |
| Корпус | Серый чугун GG-25 по DIN 1691.
Покрытие - полиэфир, устойчивый к ультрафиолетовым лучам, RAL 5017 мин. 150 μ |
| Шток, болт уплотнения, толкатель и шибер, болты и гайки | Нержавеющая сталь AISI 316 |
| Гайка штока | Бронза |
| Прокладка корпуса и сальник уплотнения | Резина NBR |
| Стойка, подшипник | Сталь st. 52 |
| Устройство привода: | |
| Шпилька с резьбой | Нержавеющая сталь AISI 316 |
| Шайба, | Бронза |
| Рычаг, кронштейн рычага, коромысло, ухо | Сталь st. 52 |
| Артикул | DN, мм | Рабочее давление, PN | Испытательное давление, PN | H1, мм | H2, мм | H3, мм | H4, мм | D, мм | G ± 1 мм, мм | K, мм | Вес, кг |
| 702-050-3013 | 50 | 10 | 16 | 568 | 339 | 81 | 321 | 125 | 43 | 100 | 8 |
| 702-065-3013 | 65 | 10 | 16 | 969 | 386 | 100 | 403 | 145 | 46 | 120 | 9 |
| 702-080-3013 | 80 | 10 | 16 | 683 | 405 | 118 | 483 | 160 | 46 | 135 | 12 |
| 702-100-3013 | 100 | 10 | 16 | 765 | 452 | 145 | 556 | 180 | 52 | 158 | 14 |
| 702-125-3013 | 125 | 10 | 16 | 845 | 507 | 175 | 626 | 210 | 56 | 188 | 16 |
| 702-150-3013 | 150 | 10 | 16 | 1061 | 603 | 203 | 798 | 240 | 56 | 212 | 25 |
| 702-200-3003 | 200 | 8 | 14 | 1548 | 718 | 212 | 1089 | 295 | 60 | 268 | 35 |
| 702-200-3013 | 200 | 8 | 14 | 1548 | 718 | 212 | 1089 | 295 | 60 | 268 | 35 |