SUGROUP — эксклюзивный поставщик концерна AVK International A/Sв Украине

Звоните: +38 (044) 563-55-55

ВОДОСНАБЖЕНИЕ

СТОЧНЫЕ ВОДЫ

ГАЗОСНАБЖЕНИЕ

ПОЖАРОТУШЕНИЕ

Фланцевый адаптер AVK SUPA MAXI ™ ДЛЯ PN16

Серия 633/00

Универсальный фланцевый адаптер Supa Maxi™
по стандарту EN 14525,

Конструкция по стандартам DIN/EN.
Универсальные фланцевые отверстия по нормам EN1092 (ISO 7005-2), PN 10/16.

Назначение:

Для воды и сточных вод с температурой от -30°С до +70°С

Рассчетное давлнение 29 бар по нормам EN 14525. Рабочее давление макс. 16 бар.

Применяется:

  • на чугунных, шарографитных, стальных, ПЭ, трубах из непластифицированного ПВХ и стальных - до макс. PN16;
  • на трубах из нержавеющей стали, ПВХ с двухосной ориентацией и стеклопластика, производимого методом непрерывной намотки, а также для труб из асбестоцемента - до макс. PN10.

Адаптер допускает осевое отклонения до макс.±4° на каждой стороне, итого до макс. ±8°.

Испытания:

  • Максимальное испытательное давление – согласно стандарту труб.

Особенности конструкции

Универсальность и экономия складских запасов

  • Одинаково высокий предел прочности соединителя на всех трубах, что обеспечивается чередующимися по всей окружности металлическими захватывающими сегментами двух видов, один из которых из пушечной бронзы – для ПЭ/ПВХ труб, другой из твердой нержавеющей стали для чугунных труб, труб из шарографитного чугуна, стальных труб, труб из нержавеющей стали, стеклопластика или асбестоцемента. Внутрь ПЭ труб устанавливаются опорные втулки во избежание их деформации.
  • С большими допусками
  • Все диаметры для давления PN16 (трубы из нержавеющей стали, асбестоцемента, ПВХ с двухосной ориентацией и стеклопластиковые, изготовленные методом непрерывной намотки – макс. PN10)

Предельная герметичность и долговечность

  • Патентованная система уплотнения SupaGrip™ с подвижным захватом обеспечивает полную опору прокладки даже на трубых минимального диаметра
  • Корпус из шарографитного чугуна, захватывающие фланцы из литой стали с эпоксидным покрытием по DIN 30677-2 и согласно требованиям GSK.
  • Прокладка из резины EPDM, утвержденной для питьевой воды
  • Металлические захватывающие сегменты закреплены шпильками для долговечности службы
  • Болты и гайки имеют антифрикционное покрытие во избежание повреждений их поверхностей
  • Постоянные защитные покрышки предохраняют захватывающие фланцы при обращении с соединителем и во время его монтажа.

Несложное обращение и монтаж

  • Допускает осевое отклонение на каждом конце до ±4° при макс. давлении 1,5 х PN16
  • Значительная глубина вставки трубных концов
  • Во время монтажа после захвата трубы соединителем она дальше вглубь не сдвинется
  • Минимальное количество болтов (см. таблицу ниже)
  • Болты затягиваются со стороны корпуса, что удобно при нехватке места
  • Стандартные фланцевые болты : нужен только 1 ключ
  • Повторное затягивание болтов не требуется
  • На корпусе соединителей DN100-300 есть подъемное ушко

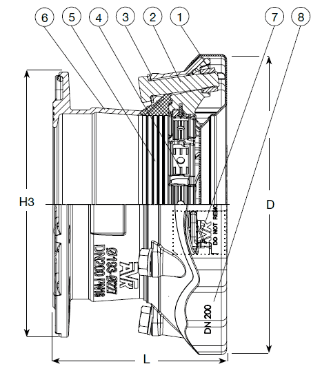
Перечень Компонентов:

1. Гайка
2. Болт
3. Шайба
4. Захватывающий сегмент
5. Прокладка
6. Корпус
7. Зажимной фланец
8. Защитная покрышка

Материалы:

Корпус Шарографитный чугун GJS-400-12 (GGG-40)
Зажимные фланцы Литая сталь с эпоксидным покрытием снаружи и внутри по DIN 30677-2 и согласно требованиям GSK.
Прокладка Резина EPDM
Захватывающие высокопрочные сегменты Пушечная бронза RG5 и твердая нержавеющая сталь
Шпильки Полиамид
Болты и шайбы Нержавеющая сталь А2 с антифрикционным покрытием
Гайки Кислотоустойчивая нержавеющая сталь А4.
Защитные покрышки Рециклируемый ПЭ.

Типоразмеры

Артикул

DN, мм

Номинал.
давление
Для Ø труб, мм L, мм D, мм H3, мм Вес,кг
633-071-00-006 * 40 16 48-71 189 200 165 5,0
633-091-00-006 ** 65 69-91 188 226 185 6,0
633-106-00-006 80 82-106 189 235 200 6,5
633-133-00-006 100 104-133 186 268 229 9,0
633-161-00-006 *** 100 132-159 185 285 254 10
633-188-00-006 150 159-188 199 340 285 12
633-227-00-006 200 193-227 225 389 343 19
633-257-00-006 225 224-257 245 437 406 25
633-301-00-006 250 266-301 254 476 406 28
633-356-00-006 300 314-356 282 545 483 38

* DN 40/50
** DN 50/65
*** DN 100/125

 

Болты

DN Болты Болт. отверст.
по стандартам*
  DN Болты Болт. отверст.
по стандартам*
40/50 3 x M16 x 75 мм 1, 2, 3, 4, 5, 8, 9, 10   150 4 x M20 x 90 мм 1, 2, 5, 9, 11
50/65 3 x M16 x 75 мм 1, 2, 3, 4, 5, 8, 9, 10 200 6 x M20 x 100 мм 1, 2, 5, 8, 9, 11
80 3 x M16 x 75 мм 1, 2, 3, 4, 5, 8, 9, 10, 11 225/250 6 x M24 x 100 мм 1, 2, 5
100 4 x M16 x 75 мм 1, 2, 3, 4, 5, 6, 7, 8, 9, 11 250 6 x M24 x 110 мм 1, 2, 5
100/125 4 x M16 x 75 мм 1, 2, 3, 4, 5, 6, 7, 8, 9, 11 300 8 x M24 x 110 мм 1, 2, 5, 9, 11


* Стандарты болт. отверстий

1: ISO 7005-2, EN 1092-2: 1997, DIN 2501 (универ. отверстия) 7: BS 10 Таблица H
2: ANSI B16.1 CL 125 8: DIN 1882
3: BS 10 Таблица A 9: AS 2129 Таблица D+E
4: BS 10 Таблица D 10: AUG-TAU
5: BS 10 Таблица E 11: AS 4087 Рис. B5
6: BS 10 Таблица F  




Яндекс.Метрика