
Серия 46/70
Клиновая задвижка с упругим запиранием с длинными стальными сварными концами по DIN 2470, ч.2,
По стандартам DIN 3437 и EN 13774
Закрытие по часовой стрелке (СТС)
Длинная строительная длина
Утверждена Сертификатами ГОСТ, УкрСЕПРО, NG-4313BO0281 на соответствие DIN-DVGW и Сертификатом CE-0085BО0317 по DVGW EG.
Для газа до +60°С
Гидравлическое испытание в соответствии с EN 3230-5, PG3
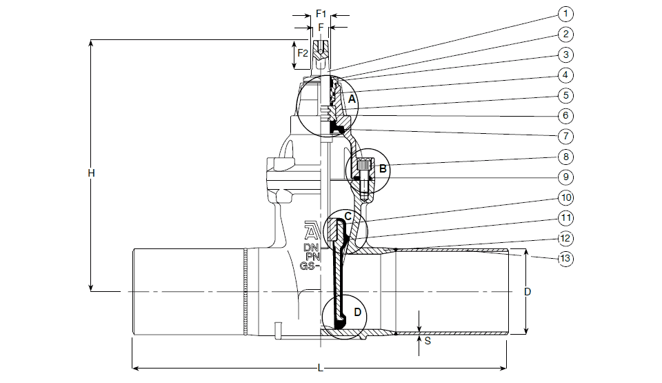
| 1. Шток |
| 2 . Грязесъемное кольцо из NBR |
| 3. Гайка уплотнения штока |
| 4. Кольцо круглого сечения NBR |
| 5. Крышка |
| 6. Упорное кольцо |
| 7. Манжета из резины NBR |
| 8. Болт крышки |
| 9. Прокладка крышки |
| 10. Гайка клина |
| 11. Клин |
| 12. Корпус |
| 13. Трубный патрубок |
A. Уплотнение шпинделя задвижки
Три независимых уплотнения обеспечивают тройную защиту:
• грязесъемное кольцо из NBR защищает от проникновения грязи снаружи
• 4 шт. кольца круглогосечения из NBR с гайкой, заменяемой под да влен ием
обеспечивают герметичность и низкое трение
• манжетное уплотнение из резины служит в качестве основного уплотнения среды и предотвращает протечи при замене гайки штокового уплотнения под давлением.
B. Соединение крышка / корпус
Уникальное соединение корпуса и крышки обеспечивает надежную
герметичность
• круглая резиновая прокладка крышки лежит в канавке, этим предотвращая ее выдувание при скачках давления
• болты крышки из нержавеющей стали утоплены в прокладке крышки и уплотнены термоклеем, что изолирует болты от контакта со средой и землей во избежание ржавления.
C. Гайка клина
Гайка клина встроена и зафиксирована - чтобы сократить количество подвижных частей задвижки и тем самым ограничить риск ржавения поверхностей и неполадок. Она сделана из устойчивой к обесцинкиванию латуни со смазывающими способностями для оптимальной совместимости со шпинделем из нержавеющей стали.
D. Вулканизированный клин
Сердечник клина из шарографитного чугуна – снаружи и внутри вулканизирован резиной NBR. Металлические части не имеют контакта со средой, и высококачестевнная вулканизация предотвращает коррозию под слоем резины. Направляющие пазы клина обеспечивают равномерное и герметичное закрытие независимо от высокого давления. Надежная работа задвижки обеспечена, т.к. направляющие предотвращают перегрузку штока.

| Корпус | Литая сталь GS-C25N |
| Крышка | Шарографитный чугун GJS-500-7(GGG-50) |
| Покрытие | Внутри и снаружи порошковое эпоксидное по DIN 30677-2 и в соответствии с требованиями GSK. Наружная поверхность покрыта полиуретаном (ПУР) по стандарту DIN 30677-2 |
| Клин | Ковкий чугун. Полностью вулканизирован резиной NBR. С зафиксированной медной клиновой гайкой. |
| Шток (с накатной резьбой и упорным кольцом для клина) | Нержавеющая сталь с содержанием хрома не менее 13% |
| Сменное уплотнение штока | Манжета из NBR, 4 кольца круглого сечения, устойчивая к обесцинкиванию латунная гайка штокового уплотнения, грязесъёмное кольцо из NBR. |
| Болты крышки с потайными головками | Нержавеющая сталь; обрамлены прокладками и запломбированы термоклеем |
| Прокладка между крышкой и корпусом | Резина NBR |
Артикул |
DN | PN | D, мм | S, мм | L, мм | H, мм | F, мм | F1, мм | F2, мм | Вес, кг |
| 46-050-70-01280 | 50 | 16 | 60 | 3 | 570 | 241 | 14 | 16 | 29 | 13 |
| 46-080-70-01280 | 80 | 16 | 89 | 3 | 550 | 297 | 17 | 20 | 34 | 16 |
| 46-100-70-01280 | 100 | 16 | 114 | 4 | 520 | 334 | 19 | 22 | 38 | 22 |
| 46-150-70-01280 | 150 | 16 | 168 | 5 | 530 | 448 | 19 | 22 | 38 | 38 |
| 46-200-70-01280 | 200 | 16 | 219 | 6 | 570 | 562 | 24 | 28 | 42 | 61 |
| 46-250-70-01280 | 250 | 16 | 273 | 6 | 590 | 664 | 27 | 31 | 47 | 86 |
| 46-300-70-01280 | 300 | 16 | 324 | 7 | 620 | 740 | 27 | 31 | 47 | 126 |
| 46-400-50-01880 | 400 | 16 | 426 | 8 | 670 | 939 | 32 | 37 | 55 | 179 |
| 46-500-50-01880* | 500 | 16 | 530 | 8 | 720 | 1142 | 30 | 30 | 84 | 520 |
| 46-600-50-01880* | 600 | 16 | 630 | 8 | 770 | 1285 | 30 | 30 | 84 | 732 |
* с верхним фланцем F14 и шпинделем Ø30 мм